Please, hover over the image to reveal its Plan Reference Number
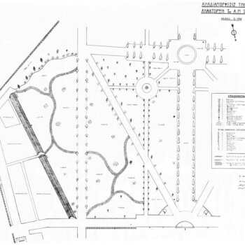
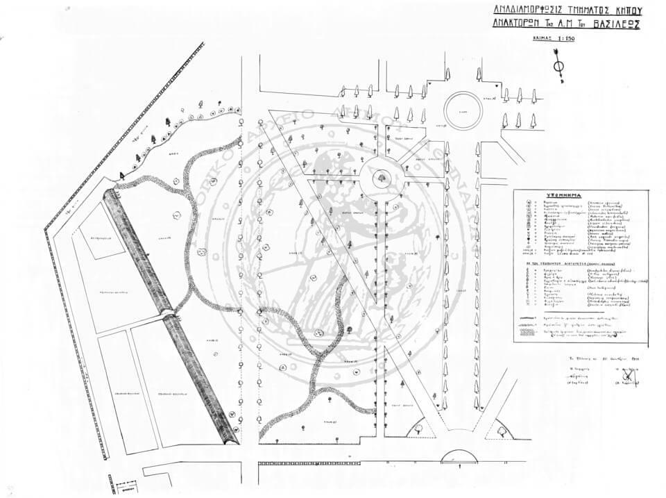
Plan No. 32. October 14, 1958. “Redesign of a section of H.M. the King’s Palace Garden,” landscape design plan, scale 1:150. Ink on tracing paper, 73×98 cm. Signed: Curator N. Tamvakis, Director D. Ioannidis.
Plan No. 49. National Garden, n.d. “Proposed site for the construction of a greenhouse [serre] within the Athens Palace Garden.” Ink on tracing paper, 26×40 cm.
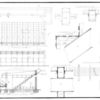
Plan No. 64. National Garden, July 1961. “Greenhouse diagram of the Athens Palace Garden,” scale 1:50 (plan view), 1:25 (section AB). Ink on tracing paper, 32×62 cm. Signed: Curator N. Tamvakis, Director D. Ioannidis.
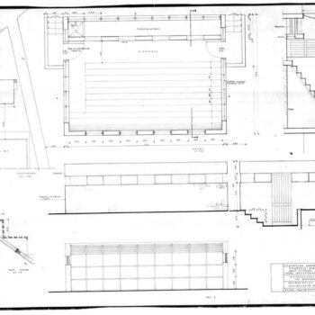
Plan No. 109. Presidential Mansion Garden, March 1977. “Presidential Mansion Greenhouse, study of load-bearing iron elements.” Plan by the Housing Service of the Ministry of Public Works, scales 1:20, 1:5, 1:1, 1:2. Ink on tracing paper. Signed: Prepared by G. Sakkas, Section Head Ch. Liberopoulos, Director Ch. Manousakis.
Plan No. 110. n.d. “Greenhouse within the precinct of the Mansion of the Presidency of the Republic.” Plan by the Housing Service of the Ministry of Public Works (Directorate of Building Works, Architectural Studies Department), scales 1:50, 1:100. Ink on tracing paper. Signed: Study by E. Gouliou-Kanda, Director Ch. Manousakis.






