Please, hover over the image to reveal its Plan Reference Number
Plan No. 93. “Route diagram and inspection shafts of the St. Thomas Aqueduct,” Athens, September 1956. Scale 1:250. Ink on tracing paper, 45×109 cm. Signed: Prepared by N. Tamvakis, Director D. Ioannidis.
Plan No. 42. “Old St. Thomas Aqueduct (Goudi). Section of the underground vaulted conduit (gallery), 257 m long, from the source (Old St. Thomas) to the intersection of Sinopis and Papadiamantopoulou Streets,” Athens 1957. Scale 1:300. Ink on tracing paper, 44×111 cm. Signed: Prepared by N. Tamvakis, Agronomist – Curator of the National Garden.
Plan No. 41. National Garden, December 5, 1957. “Final design of the plaza near the greenhouses,” scale 1:50. Ink on tracing paper, 48×58 cm. Signed: Prepared by Agronomist N. Tamvakis.
Plan No. 89. National Garden, November 14, 1957. “Redesign of a section of the National Garden,” scale 1:150. Ink on tracing paper, 50×49 cm. Signed: Prepared by Agronomist N. Tamvakis.
Plan No. 86. National Garden, 1957. “Excerpt of the National Garden diagram including the theater space for lease, measuring approximately 0.3 hectares,” scale 1:500. Ink on tracing paper, 28×38 cm. Signed: N. Tamvakis 1957.
Plan No. 113. National Garden, June 5, 1962. Digital copy of a plan titled “Planimetric diagram of the theater facilities area,” scale 1:200. Signed: Prepared by Forester Pan. Makarezos.
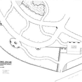
Plan No. 16. National Garden, April 1962. “Vas. Bournellis Enterprise. Survey of the theater area by the Royal Garden,” scale 1:100. Paper, 81×134 cm, with notes in pen. Signed: Emmanouil D. Tsolakis, Architect Engineer.
Plan No. 17. National Garden, April 1963. “Vas. Bournellis Enterprise. Royal Garden Theater” (section A-A’), scale 1:100. Paper, 60×97 cm. Signed: Emmanouil D. Tsolakis, Architect Engineer.
Plan No. 18. National Garden, March 1963. “National Garden Theater Stage. Vas. Bournellis Enterprise” (elevation, plan view), scale 1:50. Paper, 69×77 cm with notes in pen. Signature and Stamp: Emmanouil D. Tsolakis, Architect Engineer.
Plan No. 19. National Garden, July 1954. “Design for an open-air theater platform in the National Garden” (plan view, section), scale 1:100. Paper, 62×78 cm, with notes (ink, pencil). Signed: The Engineer (illegible).
Plan No. 68. National Garden, October 1966. “National Garden Playground Shelter” (section AB, elevation, side view, plan view), scale 1:25. Ink on tracing paper, 28×95 cm. Signed: Prepared by N. Tamvakis, Director V. Mourousias.
Plan No. 85. National Garden, February 1965. “National Garden Playground. Children’s Traffic Education Park section” (proposal), scale 1:50. Ink on tracing paper, 69×64 cm. Signed: Prepared by N. Tamvakis, Director V. Mourousias.
Plan No. 115. National Garden, February 1965. “National Garden Playground. Children’s Traffic Education Park section” (proposal), scale 1:50. Ink on tracing paper, 69×64 cm. Signed: Prepared by N. Tamvakis, Director V. Mourousias.
Plan No. 6. National Garden, January 1965. “National Garden Playground. Area reorganization and complete replacement of old equipment with new, modern units,” scale 1:100. Ink on tracing paper, 68×85 cm. Signed: Director V. Mourousias, Curator N. Tamvakis.
Plan No. 80. National Garden, August 1961. “Small bird cage [aviary] of the National Garden” (plan views, elevations), scale 1:10. Paper, 61×76 cm. Signed: Curator N. Tamvakis, Director D. Ioannidis.
Plan No. 67. National Garden, September 1966. “Prototypes for animal and bird enclosure fencing of the National Garden” (elevation, section), scale 1:25. Ink on tracing paper, 25×40 cm. Initialed: N.T (Nikolaos Tamvakis).
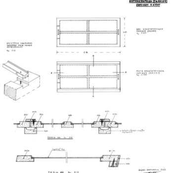
Plan No. 101. National Garden, September 1966. “Fixed wooden bench” (elevation, side view), scale 1:10. Paper, 17×32 cm. Signed: N. Tamvakis.
Plan No. 38. National Garden, November 1965. “Redesign of the National Garden section located between the Amalias Rock, the Irodou Attikou iron railing, and the old refuse depot. Committee for Public Gardens and Tree-lined Avenues,” scale 1:100. Ink on tracing paper, 80×109 cm. Signed: Prepared by N. Tamvakis, Agronomist – Landscape Designer, Curator of the National Garden.
Plan No. 56. National Garden, October 1966. “Diagram of the construction site facilities, greenhouses, etc., of the National Garden,” scale 1:10. Paper, 57×87 cm. Signed: Prepared by N. Tamvakis, Approved by: Director V. Mourousias.
Plan No. 36. National Garden, October 2, 1969. “Syntagma underground substation – restoration of the area & hotbeds of the National Garden.” Signed construction plan by the Distribution Design & Construction Directorate of the Public Power Corporation (PPC) (Plan Ref. 39489). Paper, 80×101 cm. Initialed: N. Tamvakis 4/10/69. On the verso: handwritten note “NATIONAL GARDEN NURSERY.”
Plan No. 57. National Garden, 1968. “Redesign of the National Garden section adjacent to the SE corner of the Hellenic Parliament perimeter.” Landscape design plan, scale 1:100 and 1:50 (section A-B of the pond). Ink on tracing paper, 61×91 cm. Signed: Prepared by N. Tamvakis, Director V. Mourousias.
Plan No. 13. National Garden, October 1971. “National Garden Monkey Cage – National Garden Pigeon House” (elevations, plan views, sections), scales 1:10 and 1:15 respectively. Ink on tracing paper, 78×75 cm. Signed: Prepared by N. Tamvakis.
Plan No. 81. Charvati, November 1972. “Metallic two-wheeled trailer” (plan view, side view, sections), scale 1:10. Ink on tracing paper, 52×70 cm. Signed: N. Tamvakis.
Plan No. 50. National Garden, February 12, 1973. “National Garden: Section near the Amalias central entrance.” Landscape design plan with proposed placement of the statue of Queen Amalia, scale 1:300. Ink on tracing paper, 31×64 cm. Signed: Prepared by N. Tamvakis, Director of the National Garden.
Plan No. 54. National Garden, March 1979. “Redesign of the National Garden section near the Sophora plaza,” landscape design plan, scale 1:100. Ink on tracing paper, 54×55 cm. Signed: Prepared by N.H. Tamvakis, Agronomist-Landscape Designer, Director of the National Garden.
Plan No. 91. National Garden, September 1972. “Glass frames (covers) for the National Garden hotbeds (seedbeds)” (elevation, sections, and construction details at various scales). Ink on tracing paper, 58×50 cm. Signed: N. Tamvakis.
Plan No. 40. National Garden, December 1980. “Landscape design plan (on a grid with flower bed numbering). Includes all rearrangements, additions, or expansions carried out over the last twenty years,” scale 1:100. Pencil and ink on tracing paper, 105×92 cm. Signed: Prepared by N. Tamvakis, Director N. Tamvakis. The surrounding area of the “Office of George I” is demarcated with correction fluid.
Plan No. 114. National Garden, December 1980. “Landscape design plan” (on a grid with flower bed numbering). Includes all rearrangements, additions, or expansions carried out over the last twenty years,” scale 1:100. Pencil and ink on paper, 105×92 cm. Signed: Prepared by N. Tamvakis, Director N. Tamvakis. The surrounding area of the “Botanical Museum” is demarcated with correction fluid.
Plan No. 92. National Garden, September 7, 1986. Landscape design plan for a section of the National Garden (Propagation House-Café-Warehouse-Greenhouse-Offices). Pencil on tracing paper, 56×69 cm. Signed: Giannis Papastamatiou.
Plan No. 73. National Garden, n.d. “Extension of National Garden Offices,” scale 1:25. Ink on tracing paper, 37×42 cm.
Plan No. 71. National Garden, December 1984. “Botanical Museum of the National Garden – Exterior Landscaping.” Collage on paper, 30×70 cm. Signed: P. Zambelis.
Plan No. 23. National Garden, n.d. “Sundial Copy of the National Garden of Athens” (plan view, section of the gnomon), Sundial base (elevation), and mounting details (section A-A, B-B). Paper, 70×108 cm. Plan Ref. 215.

































